Description
Enlarged version of the project with a double garage, storage room and sauna.
Total area 283.9 m²
Garage 41.3 m²
Basement no
Building area 330.8 m2
may not include terrace area
Cubic capacity 1 700 m³
Height 6.8 m
Roof inclination angle 2 °
Roof area 183.9 m²
A project of a simple high-tech house (projects of this style can be viewed in the section of the catalog “modern houses”), which has an attractive exterior due to large-scale glazing and an arcade that unites the entrances to the house and the garage.
Project advantages:
The convenient transition from garage to cottage makes it easier to unload purchases.
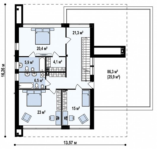
The ground floor is designed as a complete relaxation area with a lovely living room, bathroom, gym and an additional room that can be converted into a workshop or guest bedroom.
The second floor was occupied by a comfortable night zone of three bedrooms. The large room provides an individual wardrobe and a bathroom.
The house has three bathrooms, which will allow a large family to get together quickly and will save you from waiting for your turn in the morning.
The terrace is truly spacious and will give a wonderful rest at any time of the year.











