Description
Two-storey house in the style of an Italian villa with a covered terrace and a garage for two cars.
Total area 264.2 m²
Garage 42.2 m²
Building area 268.7 m2 – may not include terrace area
Cubic capacity 1 546 m³
Height 8.33 m
Roof inclination angle 22 ° / 16 °
Roof area 362 m²
The project is a two-storey house with a built-in garage for two cars.
This home features a modern cubic envelope roof, an attractive façade with wooden elements and a large covered terrace.
The central space on the ground floor is occupied by a living room, combined with a dining room, which forms a common living space.
From there you can get to the partially covered terrace next to the house, which is connected to the inner garden.
The warmth and light of the living room is added by the fireplace, which is successfully built into the wall between the dining room and the hall.
The spacious kitchen offers the option to sit in the middle of a wide dining table.
In addition, the kitchen has a compact pantry for storing food, which, of course, will be appreciated by any housewife.
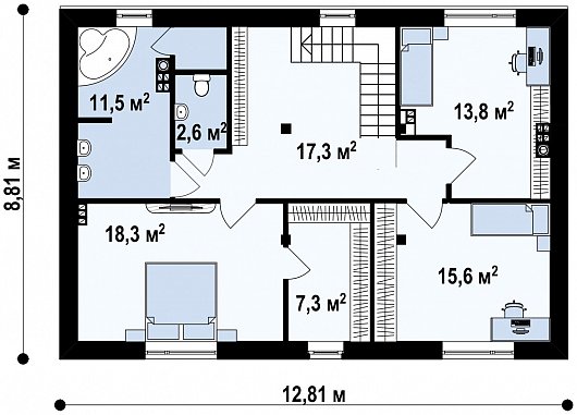
The second floor has four comfortable bedrooms, a dressing room and two bathrooms.
One of the bedrooms has a private bathroom and a terrace.








