Description
Modern two-storey house of simple form with a terrace on the second floor.
Total area 203.1 m²
Garage 28.1 m²
Building area 207.0 m² – may not include terrace area
Cubic capacity 900 m³
Height 8.18 m
Roof inclination angle 22 °
Roof area 135.6 m²
The project is a modern house with a garage and a large terrace on the second floor.
The facade decoration with modern materials and the original roof design give the building an elegance and unique character.
This design is an alternative to sloped roof designs.
It is recommended for those looking for a home with a comfortable, useful and functional solution for the second floor space.
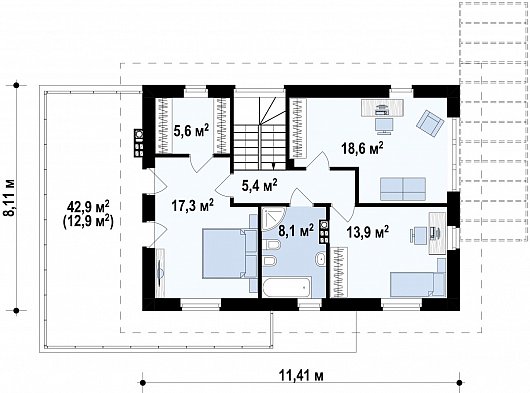
The interior layout of the building is made in functional and spacious solutions.
On the ground floor there is an entrance hall, a dressing room and a hall from which you can get to the rest of the house.
The kitchen, combined with the dining room and living room, creates the impression of a single space, successfully delimited into functional areas.
The living room has an exit to the terrace with a slightly avant-garde but practical solution – a transparent gazebo.
The fireplace in the living room will create a romantic mood on winter evenings.
An additional advantage of the first floor is a study, to which there is the possibility of an isolated entrance.
On the ground floor there are also two small bathrooms and a laundry room where you can store linen directly from the second floor.
The utility room can also serve as a boiler room; it provides for the installation of modern technical devices.
In addition, the structure of the building provides a garage for one car, with a wide driveway and utility room, which can also serve as a storage room or a small workshop.
The undoubted advantage of the second floor is that there are no bevels and irregularities in the ceiling.
Thanks to this, all the useful space can be used to the fullest. There is also a large side terrace here.
On the second floor there are three large bedrooms, one of which has a terrace, a bathroom and an extensive wardrobe.
This project can be presented in several versions: for example, with a back terrace, with a garage, with windows in the side walls.
Mirror version of the project is also available






























