Description
Modern comfortable two-storey house with a flat roof, a garage and a terrace on the second floor.
Total area 279.7 m²
Garage 36.9 m²
Building area 263.4 m2
may not include terrace area
Cubic capacity 961.9 m³
Height 7.08 m
Roof inclination angle 2 °
Roof area 109.6 m²
The project is simple and modern at the same time.
Large glass walls, an almost flat parapet roof and original details emphasize the innovative character of the house.
On the ground floor there is an area for daily activities and a double garage.
The individuality of the rooms is highlighted by accents such as a double-sided fireplace between the living room and dining room, and an “island” with a buffet in the kitchen.
A special advantage is the garage, which is connected to the house by a storeroom, which allows communication with the interior and facilitates unpacking of purchases.
Another advantage of this project is an additional cozy room that can serve as a quiet study or a cozy bedroom.
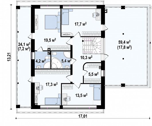
In addition, on the second floor there are four comfortable and spacious bedrooms, each with access to a large terrace, two bathrooms, shared and isolated, as well as a wardrobe.
An interesting addition to this part of the house is the covered terrace.






























