Description
A modern two-storey house with a large glazing area.
Total area 292.8 m²
Garage 45.3 m²
Building area 383.1 m² – may not include terrace area
Cubic capacity 2 537.54 m³
Height 8.05 m
Roof inclination angle 2 °
Roof area 191 m²
This is a two-storey house with a garage, a large terrace above it and large areas of glazing.
The façade, made of dark exotic wood and plaster in a cool white shade, is effectively combined with the greenery of the garden.
The space is clearly zoned with a corner fireplace combined with a kitchen work area that separates the dining room from the living room.
Also on the ground floor there is an additional room and a spacious garage for two cars.
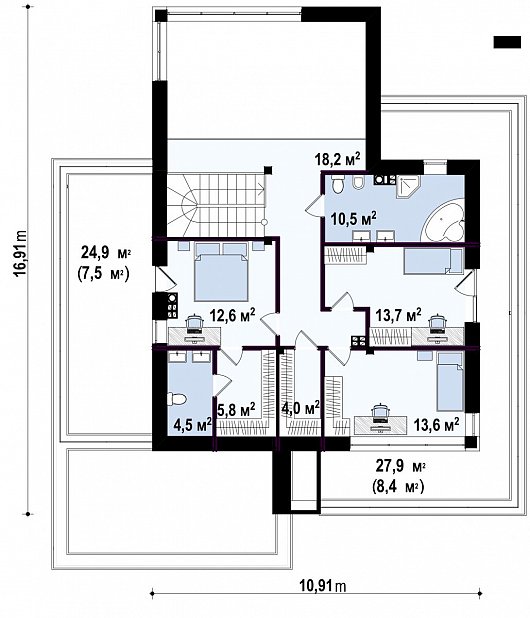
The second floor is the night area, which features three bedrooms, equipped with two dressing rooms, bathrooms and access to the terrace.
The project is a modern embodiment of practicality and will look great both on large suburban areas and in dense urban areas.











































